若葉4丁目 店舗付き中古住宅

2,200万円

北海道釧路郡釧路町若葉4丁目15

根室本線「釧路」駅バス32分くしろバス「富原小学校」停歩10分

根室本線「東釧路」駅バス9分くしろバス「国誉6丁目」停歩3分

根室本線「武佐」駅バス3分くしろバス「国誉6丁目」停歩3分

価格
2,200万円
間取り
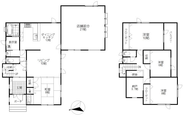
4SLDK
土地面積
314.00㎡
所在地
北海道釧路郡釧路町若葉4丁目15
交通

根室本線釧路」駅 バス32分 くしろバス「富原小学校」 停歩10分

根室本線東釧路」駅 バス9分 くしろバス「国誉6丁目」 停歩3分

根室本線武佐」駅 バス3分 くしろバス「国誉6丁目」 停歩3分

建物面積
137.49㎡
築年月
1989年12月(築36年)

物件の特徴

  • 室内洗濯機置場

セールスポイント

平屋の店舗付き中古住宅のご紹介です♪富原小中学校へ通えるエリアで広々とした4SLDKの間取りです。駐車スペースは4台ほどございます。1階2階にトイレが設置、お風呂は1坪風呂、床暖房、エアコンもございます。中古住宅になりますので多少リフォームの必要箇所も出てまいりますがリフォームのご相談にものりますのでまずはご内見いかがでしょうか(^^♪

ポイント

照明器具付き フローリング 土地50坪以上 バルコニー 追焚機能浴室

基本情報

販売戸数
-
総戸数
-
間取り / 詳細
4SLDK
向き
-
建物面積(坪数)
137.49㎡(41.59坪)
土地面積(坪数)
314.00㎡(94.98坪)
建ぺい率 /
容積率
60%/200%
築年月
1989年12月(築36年)
駐車場 /
月額料金
有(4台) 0円
土地権利
所有権
土地
(敷金 / 保証金)
- / -
建物構造
木造 / 2階建
傾斜地部分面積
-
路地状敷地
-
私道負担面積
-
セットバック
高圧線下面積
-
施工会社
-
用途地域
第一種中高層住居専用
地目 / 地勢
原野 / 平坦
接道状況
一方(北西 公道 6.0m 間口 15.8m)
国土法届出要否
不要
都市計画
市街化区域
総区画数 /
販売区画数
-/-
現況
空家
その他
法令上の制限
景観法
取引態様
一般媒介
引渡し
相談
取引条件の
有効期限
2026年03月17日

設備条件

設備条件
  • 室内洗濯機置場 / フローリング / バルコニー / 都市ガス / 公営水道 / 公共下水 / 照明器具付き / ガスコンロ / コンロ2口以上 / システムキッチン / コンロ3口 / 追焚機能浴室 / トイレ2ヶ所 / 浴室1坪以上 / エアコン / 床暖房
設備(その他)
    -

その他

物件番号
98988926
管理コード
-
建築確認番号
-
情報更新日
2026年03月03日
次回更新予定日
2026年03月17日
取扱会社
  • 有限会社北陽商事(売買)
  • 北海道釧路市南浜町5-4 
  • TEL:0154-68-5757
  • 北海道知事釧路 (15) 第104号
  • 公益社団法人北海道宅地建物取引業協会
    公益社団法人北海道不動産公正取引協議会
    全国賃貸管理ビジネス協会
    釧路みなとライオンズクラブ 会員
    一般社団法人 全国賃貸不動産管理業協会 会員
    一般社団法人 北海道中小企業家同友会
備考
・平屋店舗部分は未登記となります、銀行融資の審査条件で増築登記を求められた場合は買主の費用負担で増築登記を行うものといたします。

周辺施設

  • セイコーマート 若葉店の画像

    コンビニエンスストア

    セイコーマート 若葉店

    185m(3分)

  • 釧路町立富原中学校の画像

    中学校

    釧路町立富原中学校

    602m(8分)

  • 釧路町立富原小学校の画像

    小学校

    釧路町立富原小学校

    838m(11分)

  • 卸売スーパーヒロセ 睦店の画像

    スーパー

    卸売スーパーヒロセ 睦店

    944m(12分)

  • 釧路めぐみ幼稚園の画像

    幼稚園

    釧路めぐみ幼稚園

    1602m(21分)

支払いシミュレーション

月々の支払額
購入希望物件価格
万円
頭金
万円
金利
%
返済額(ボーナス1回分)
万円
返済期間

※ボーナスは自動で年2回分で計算されます。

近隣の物件

  1. 曙3丁目【築浅】中古住宅

    釧路郡釧路町曙3丁目

    3LDK (110.81㎡)

    4,760万円

  2. 曙4丁目【築浅】中古住宅

    釧路郡釧路町曙4丁目

    4LDK (109.00㎡)

    3,680万円

  3. 釧路町東陽西1丁目5 中古住宅

    釧路郡釧路町東陽西1丁目

    5LDK (116.00㎡)

    3,600万円

  4. 南陽台7-26 中古住宅

    釧路郡釧路町南陽台7丁目

    4LDK (107.64㎡)

    500万円

よく見られている物件

  1. 美原5丁目14 中古住宅

    釧路市美原5丁目

    4LDK (168.77㎡)

    2,100万円

  2.  新栄町RC戸建

    釧路市新栄町

    5LDK (136.08㎡)

    750万円

  3. 鳥取大通6丁目 高気密・高断熱・高気密住宅【手数料かかりません♪】

    釧路市鳥取大通6丁目

    4LDK+S(納戸) (112.61㎡)

    3,980万円

  4. 昭和南6丁目 中古住宅

    釧路市昭和南6丁目

    4LDK (119.24㎡)

    1,580万円

若葉4丁目 店舗付き中古住宅

若葉4丁目 店舗付き中古住宅

2,200万円

-

4SLDK(137.49㎡)

お気軽にお問い合わせください

LINEからお問い合わせ 無料お問い合わせ

有限会社北陽商事(売買)

0154-68-5757

10:00~18:00

(休:日曜(1月~3月は無休))