若葉4丁目 店舗付き中古住宅

2,200万円

北海道釧路郡釧路町若葉4丁目15

根室本線「釧路」駅バス32分くしろバス「富原小学校」停歩10分

根室本線「東釧路」駅バス9分くしろバス「国誉6丁目」停歩3分

根室本線「武佐」駅バス3分くしろバス「国誉6丁目」停歩3分

価格
2,200万円
間取り/建物面積
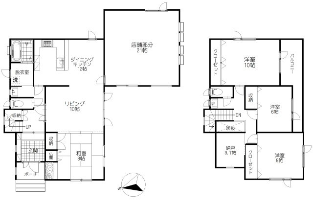
4LDK/137.49㎡
所在地
北海道釧路郡釧路町若葉4丁目15
築年
1989年12月(築36年)
駐車
有(4台)
交通

根室本線釧路」駅 バス32分 くしろバス「富原小学校」 停歩10分

根室本線東釧路」駅 バス9分 くしろバス「国誉6丁目」 停歩3分

根室本線武佐」駅 バス3分 くしろバス「国誉6丁目」 停歩3分

若葉4丁目 店舗付き中古住宅の基本情報

物件名
若葉4丁目 店舗付き中古住宅
価格
2,200万円
建物面積
137.49㎡
土地面積
94.98坪(314.00㎡)
築年月
1989年12月(築36年)
総戸数
-
所在地
北海道釧路郡釧路町若葉4丁目15
交通

根室本線釧路」駅 バス32分 くしろバス「富原小学校」 停歩10分

根室本線東釧路」駅 バス9分 くしろバス「国誉6丁目」 停歩3分

根室本線武佐」駅 バス3分 くしろバス「国誉6丁目」 停歩3分

若葉4丁目 店舗付き中古住宅の詳細情報

設備条件
設備(その他)
    -
駐車場/月額
有(4台)/0円
土地権利
所有権
国土法届出
不要
用途地域
第一種中高層住居専用
取引態様
一般媒介
引渡し
相談

若葉4丁目 店舗付き中古住宅で募集中の物件

  1. 41.59坪 (137.49㎡)

    2,200万円(52.9万円/坪)

周辺施設

  • セイコーマート 若葉店の画像

    コンビニエンスストア

    セイコーマート 若葉店

    185m(3分)

  • 釧路町立富原中学校の画像

    中学校

    釧路町立富原中学校

    602m(8分)

  • 釧路町立富原小学校の画像

    小学校

    釧路町立富原小学校

    838m(11分)

  • 卸売スーパーヒロセ 睦店の画像

    スーパー

    卸売スーパーヒロセ 睦店

    944m(12分)

  • 釧路めぐみ幼稚園の画像

    幼稚園

    釧路めぐみ幼稚園

    1602m(21分)

近隣の物件

  1. 釧路郡釧路町曙3丁目

    3LDK (110.81㎡)

    4,760万円

  2. 釧路郡釧路町曙4丁目

    4LDK (109.00㎡)

    3,680万円

  3. 釧路郡釧路町東陽西1丁目

    5LDK (116.00㎡)

    3,450万円

  4. 釧路郡釧路町南陽台7丁目

    4LDK (107.64㎡)

    500万円

よく見られている物件

  1. 釧路市美原5丁目

    4LDK (168.77㎡)

    2,100万円

  2. 釧路市新栄町

    5LDK (136.08㎡)

    750万円

  3. 釧路市鳥取大通6丁目

    4LDK+S(納戸) (112.61㎡)

    3,980万円

  4. 釧路市愛国西4丁目

    6LDK+S(納戸) (174.41㎡)

    3,300万円

若葉4丁目 店舗付き中古住宅

お気軽にお問い合わせください

LINEからお問い合わせ 無料お問い合わせ

有限会社北陽商事(売買)

0154-68-5757

10:00~18:00

(休:日曜(1月~3月は無休))