春採6丁目《平屋》中古住宅

2,200万円

北海道釧路市春採6丁目2-18

根室本線「武佐」駅徒歩55分

くしろバス「春採中学校」バス停

価格
2,200万円
間取り/建物面積
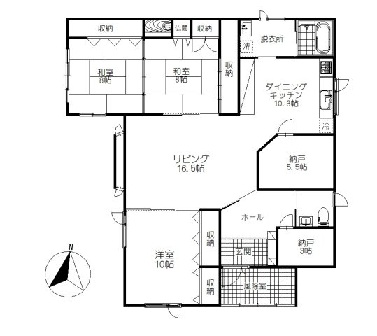
3LDK/145.74㎡
所在地
北海道釧路市春採6丁目2-18
築年
2001年9月(築24年)
駐車
有(2台)
交通

根室本線武佐」駅 徒歩55分

くしろバス「春採中学校」バス停下車 徒歩4分

春採6丁目《平屋》中古住宅の基本情報

物件名
春採6丁目《平屋》中古住宅
価格
2,200万円
建物面積
145.74㎡
土地面積
100坪(330.60㎡)
築年月
2001年9月(築24年)
総戸数
-
所在地
北海道釧路市春採6丁目2-18
交通

根室本線武佐」駅 徒歩55分

くしろバス「春採中学校」バス停下車 徒歩4分

春採6丁目《平屋》中古住宅の詳細情報

設備条件
  • 駐車2台可
設備(その他)
    -
駐車場/月額
有(2台)/-
土地権利
所有権
国土法届出
不要
用途地域
第一種中高層住居専用
取引態様
一般媒介
引渡し
相談

春採6丁目《平屋》中古住宅で募集中の物件

  1. 44.08坪 (145.74㎡)

    2,200万円(49.91万円/坪)

周辺施設

  • フクハラハピネスマート春採店の画像

    スーパー

    フクハラハピネスマート春採店

    143m(2分)

  • 春採中学校の画像

    中学校

    春採中学校

    288m(4分)

  • 桜が丘小学校の画像

    小学校

    桜が丘小学校

    427m(6分)

  • 釧路望洋郵便局の画像

    郵便局

    釧路望洋郵便局

    511m(7分)

  • セブンイレブン 釧路興津2丁目店の画像

    コンビニエンスストア

    セブンイレブン 釧路興津2丁目店

    594m(8分)

  • 釧路信用金庫春採支店の画像

    信用金庫

    釧路信用金庫春採支店

    599m(8分)

  • サンドラッグ 春採店の画像

    ドラッグストア

    サンドラッグ 春採店

    604m(8分)

  • ローソン 釧路桜ケ岡一丁目店の画像

    コンビニエンスストア

    ローソン 釧路桜ケ岡一丁目店

    943m(12分)

  • セイコーマート釧路春採店の画像

    コンビニエンスストア

    セイコーマート釧路春採店

    1116m(14分)

  • 桜ケ岡皮膚科クリニックの画像

    皮膚科

    桜ケ岡皮膚科クリニック

    1213m(16分)

  • ザ・ビッグ 春採店の画像

    スーパー

    ザ・ビッグ 春採店

    1560m(20分)

  • 釧路桜幼稚園の画像

    幼稚園

    釧路桜幼稚園

    1686m(22分)

  • 釧路はるとり保育園の画像

    保育園

    釧路はるとり保育園

    1775m(23分)

  • コーチャンフォー 釧路店の画像

    書店

    コーチャンフォー 釧路店

    2043m(26分)

  • 北海道教育大学釧路校の画像

    大学

    北海道教育大学釧路校

    3149m(40分)

近隣の物件

  1. 釧路市昭和北2丁目

    4LDK (103.50㎡)

    1,780万円

  2. 釧路市文苑3丁目

    3LDK (89.49㎡)

    2,800万円

  3. 釧路市芦野3丁目

    3LDK (100.60㎡)

    1,490万円

  4. 釧路市美原5丁目

    4LDK (115.92㎡)

    1,580万円

よく見られている物件

  1. 釧路市美原5丁目

    4LDK (168.77㎡)

    2,100万円

  2. 釧路市新栄町

    5LDK (136.08㎡)

    750万円

  3. 釧路市鳥取大通6丁目

    4LDK+S(納戸) (112.61㎡)

    3,980万円

  4. 釧路市昭和南6丁目

    4LDK (119.24㎡)

    1,580万円

春採6丁目《平屋》中古住宅

お気軽にお問い合わせください

LINEからお問い合わせ 無料お問い合わせ

有限会社北陽商事(売買)

0154-68-5757

10:00~18:00

(休:日曜(1月~3月は無休))