白糠町西1条北6 売土地

100万円

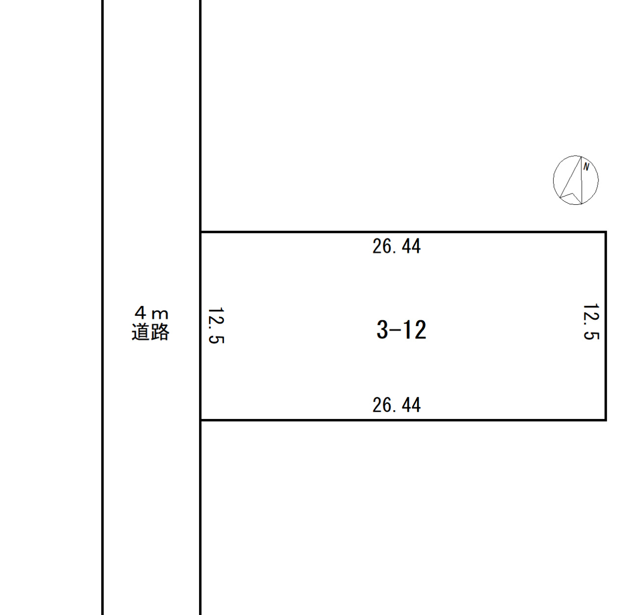
北海道白糠郡白糠町西一条北6丁目3-12

根室本線「白糠」駅徒歩16分

価格
100万円
坪単価
1万円(99.97坪)
所在地
北海道白糠郡白糠町西一条北6丁目3-12
交通

根室本線白糠」駅 徒歩16分

土地面積(坪数)
330.50㎡(99.97坪)
建ぺい率 / 容積率
60% / 150%

セールスポイント

長閑な白糠町・敷地広々約100坪の土地のご紹介です!!

ポイント

整形地 仲介手数料無料 土地50坪以上 閑静な住宅地 平坦地

担当者のコメント

◆リーズナブルな土地を手に入れて、建物に費用を掛けてみませんか!
◆子育てへの応援も手厚い白糠町
◆町民プールも人気のスポットです!

弊社は融資のご相談から、建築のご相談まで随時受け付けております。
お問合せ、お待ちしております♪

基本情報

販売区画数
-
総区画数
-
土地面積(坪数)
330.50㎡(99.97坪)
坪単価
1万円
私道負担面積
割合
-
セットバック
建ぺい率 /
容積率
60% / 150%
高圧線下面積
-
傾斜地部分面積
-
路地状敷地
-
地目
宅地
地勢
平坦
造成工事
完了予定
-
土地権利
所有権
建築条件
-
都市計画
市街化区域
用途地域
第一種中高層住居専用
接道状況
一方(北西 公道 4.0m 間口 12.5m)
国土法届出要否
不要
最適用途
-
その他
法令上の制限
-
取引態様
売主
現況
更地
引渡条件
更地渡
引渡時期
即時
開発許可番号
-
取引条件の
有効期限
2026年05月29日

設備条件

設備条件
  • 閑静な住宅地 / 仲介手数料無料
設備(その他)
    -

その他

物件番号
87621666
管理コード
-
情報更新日
2026年05月15日
次回更新予定日
2026年05月29日
取扱会社
  • 有限会社北陽商事(売買)
  • 北海道釧路市南浜町5-4 
  • TEL:0154-68-5757
  • 北海道知事釧路 (15) 第104号
  • 公益社団法人北海道宅地建物取引業協会
    公益社団法人北海道不動産公正取引協議会
    全国賃貸管理ビジネス協会
    釧路みなとライオンズクラブ 会員
    一般社団法人 全国賃貸不動産管理業協会 会員
    一般社団法人 北海道中小企業家同友会
備考
第一種中高層住居専用地域は、住むことを目的とした地域なので、住みやすい環境です。土地面積は330.5㎡(公簿)で一押しです。環境の良いエリアにある売地です。この土地の価格は100万円です。専門知識も必要になる不動産探しにお困りではありませんか。お客様のお悩みや疑問、住まいに求めるこだわりをぜひ当社スタッフにお聞かせください。親切丁寧にサポートいたします。

周辺施設

  • 白糠町役場の画像

    市役所・区役所

    白糠町役場

    1147m(15分)

  • 白糠郵便局の画像

    郵便局

    白糠郵便局

    1211m(16分)

  • セブンイレブン白糠東1条店の画像

    コンビニエンスストア

    セブンイレブン白糠東1条店

    1222m(16分)

  • ツルハドラッグ白糠店の画像

    ドラッグストア

    ツルハドラッグ白糠店

    1280m(16分)

  • DCMニコット白糠店の画像

    ホームセンター

    DCMニコット白糠店

    1494m(19分)

  • 釧路信用金庫白糠支店の画像

    信用金庫

    釧路信用金庫白糠支店

    1494m(19分)

  • 北海道銀行白糠支店の画像

    銀行

    北海道銀行白糠支店

    1537m(20分)

  • 白糠町立白糠学園の画像

    小学校

    白糠町立白糠学園

    1596m(20分)

支払いシミュレーション

月々の支払額

※実際の金額と異なる場合があります。

購入希望物件価格
万円
頭金
万円
金利
%
返済額(ボーナス1回分)
万円
返済期間

※ボーナスは自動で年2回分で計算されます。

近隣の物件

  1. 白糠町東3条北2丁目 古屋付土地

    白糠郡白糠町東三条北2丁目

    - (272.00㎡)

    78万円

よく見られている物件

  1. 米町3丁目売土地

    釧路市米町3丁目

    - (237.18㎡)

    150万円

  2. 城山1丁目《古家付土地》

    釧路市城山1丁目

    - (165.47㎡)

    100万円

  3. 大楽毛西1丁目 古屋付土地

    釧路市大楽毛西1丁目

    - (177.88㎡)

    78万円

  4. 緑ヶ岡5丁目古家付売土地

    釧路市緑ケ岡5丁目

    - (224.53㎡)

    480万円

白糠町西1条北6 売土地

白糠町西1条北6 売土地

100万円

-(330.50㎡)

お気軽にお問い合わせください

LINEからお問い合わせ 無料お問い合わせ

有限会社北陽商事(売買)

0154-68-5757

10:00~18:00

(休:日曜(1月~3月は無休))