鳥取大通6丁目 高気密・高断熱・高気密住宅【手数料かかりません♪】

3,980万円

北海道釧路市鳥取大通6丁目6-7

根室本線「新富士」駅徒歩30分

根室本線「新大楽毛」駅徒歩53分

根室本線「釧路」駅徒歩65分

価格
3,980万円
間取り/建物面積
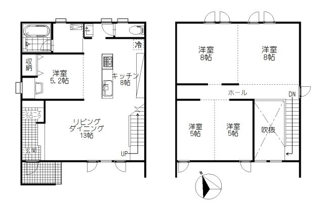
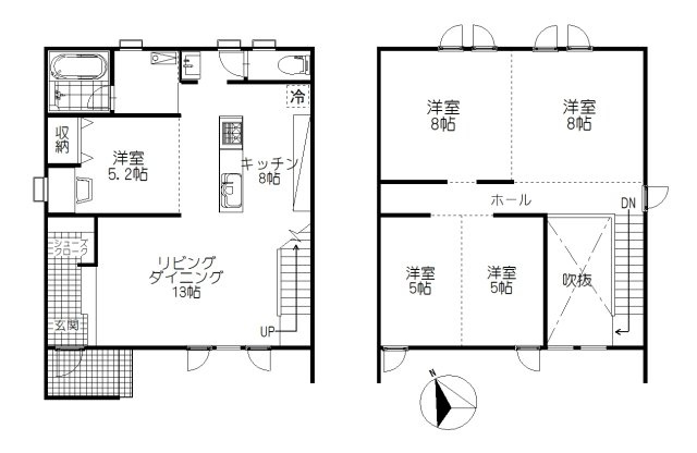
4LDK+S(納戸)/112.61㎡
所在地
北海道釧路市鳥取大通6丁目6-7
築年
2023年3月(築3年)
駐車
有(3台)
交通

根室本線新富士」駅 徒歩30分

根室本線新大楽毛」駅 徒歩53分

根室本線釧路」駅 徒歩65分

鳥取大通6丁目 高気密・高断熱・高気密住宅【手数料かかりません♪】の基本情報

物件名
鳥取大通6丁目 高気密・高断熱・高気密住宅【手数料かかりません♪】
価格
3,980万円
建物面積
112.61㎡
土地面積
69.13坪(228.53㎡)
築年月
2023年3月(築3年)
総戸数
-
所在地
北海道釧路市鳥取大通6丁目6-7
交通

根室本線新富士」駅 徒歩30分

根室本線新大楽毛」駅 徒歩53分

根室本線釧路」駅 徒歩65分

鳥取大通6丁目 高気密・高断熱・高気密住宅【手数料かかりません♪】の詳細情報

設備条件
  • 駐車3台可
設備(その他)
    -
駐車場/月額
有(3台)/-
土地権利
所有権
国土法届出
不要
用途地域
第二種中高層住居専用
取引態様
一般媒介
引渡し
即時

鳥取大通6丁目 高気密・高断熱・高気密住宅【手数料かかりません♪】で募集中の物件

  1. 34.06坪 (112.61㎡)

    3,980万円(116.85万円/坪)

周辺施設

  • 丸亀製麺釧路店の画像

    そば・うどん

    丸亀製麺釧路店

    262m(4分)

  • 吉野家 釧路鳥取大通店の画像

    その他

    吉野家 釧路鳥取大通店

    281m(4分)

  • 釧路西郵便局の画像

    郵便局

    釧路西郵便局

    349m(5分)

  • 鳥取西小学校の画像

    小学校

    鳥取西小学校

    362m(5分)

  • セブンイレブン 釧路鳥取大通5丁目店の画像

    コンビニエンスストア

    セブンイレブン 釧路鳥取大通5丁目店

    376m(5分)

  • 釧路信用金庫 西港支店の画像

    信用金庫

    釧路信用金庫 西港支店

    570m(8分)

  • ツルハドラッグ 釧路鳥取大通店の画像

    ドラッグストア

    ツルハドラッグ 釧路鳥取大通店

    589m(8分)

  • 鳥取西中学校の画像

    中学校

    鳥取西中学校

    877m(11分)

  • 釧路市立鳥取保育園の画像

    保育園

    釧路市立鳥取保育園

    958m(12分)

  • ザ・ビッグ鳥取大通店の画像

    スーパー

    ザ・ビッグ鳥取大通店

    984m(13分)

  • 昭和みなみ公園(鳥取1号公園)の画像

    公園

    昭和みなみ公園(鳥取1号公園)

    2004m(26分)

近隣の物件

  1. 釧路市昭和北2丁目

    4LDK (103.50㎡)

    1,780万円

  2. 釧路市文苑3丁目

    3LDK (89.49㎡)

    2,800万円

  3. 釧路市芦野3丁目

    3LDK (100.60㎡)

    1,490万円

  4. 釧路市美原5丁目

    4LDK (115.92㎡)

    1,580万円

よく見られている物件

  1. 釧路市美原5丁目

    4LDK (168.77㎡)

    2,100万円

  2. 釧路市新栄町

    5LDK (136.08㎡)

    750万円

  3. 釧路市鳥取大通6丁目

    4LDK+S(納戸) (112.61㎡)

    3,980万円

  4. 釧路市昭和南6丁目

    4LDK (119.24㎡)

    1,580万円

鳥取大通6丁目 高気密・高断熱・高気密住宅【手数料かかりません♪】

お気軽にお問い合わせください

LINEからお問い合わせ 無料お問い合わせ

有限会社北陽商事(売買)

0154-68-5757

10:00~18:00

(休:日曜(1月~3月は無休))