NEW

大楽毛西1丁目3 中古住宅

1,333万円

北海道釧路市大楽毛西1丁目3-10

根室本線「大楽毛」駅徒歩12分

くしろバス「まりも団地」バス停

価格
1,333万円
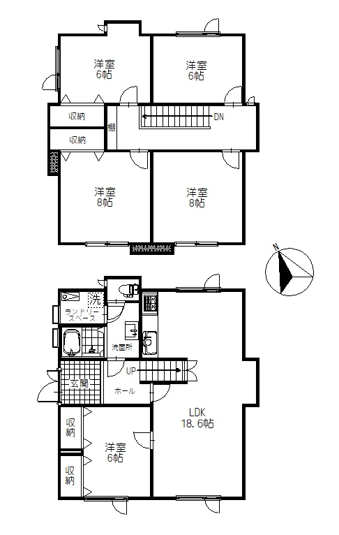
間取り
5LDK
土地面積
579.33㎡
所在地
北海道釧路市大楽毛西1丁目3-10
交通

根室本線大楽毛」駅 徒歩12分

くしろバス「まりも団地」バス停下車 徒歩4分

建物面積
124.49㎡
築年月
1980年11月(築45年)

セールスポイント

大楽毛西1丁目、リフォーム済み住宅のご紹介です!2025年7月に外壁・屋根を塗装し、内装も水廻り設備を全て新品交換し、壁クロスや床も貼替え、一新しております。敷地面積が広大で175坪もありますので、駐車スペースも5台かそれ以上でも確保できそうです。間取りは5LDKありますので、大家族など部屋数が必要な方にもおススメです!皆様からのお問合せ、お待ちしております♪

基本情報

販売戸数
-
総戸数
-
間取り / 詳細
5LDK
LDK 18.6帖/洋室 6.0帖/洋室 8.0帖 2室/洋室 6.0帖 2室
向き
-
建物面積(坪数)
124.49㎡(37.65坪)
土地面積(坪数)
579.33㎡(175.24坪)
建ぺい率 /
容積率
60%/200%
築年月
1980年11月(築45年)
駐車場 / 月額
有(5台) / -
土地権利
所有権
土地
(敷金 / 保証金)
- / -
建物構造
木造 / 2階建
傾斜地部分面積
-
路地状敷地
-
私道負担面積
-
セットバック
高圧線下面積
-
施工会社
-
用途地域
第一種中高層住居専用
地目 / 地勢
宅地 / 平坦
接道状況
角地(北東 公道 8.0m 間口 20.4m)(南西 公道 8.0m 間口 12.6m)
国土法届出要否
不要
都市計画
市街化区域
総区画数 /
販売区画数
-/-
現況
空家
その他
法令上の制限
景観法/宅地造成及び特定盛土等規制法/日影制限有/隅切り有
取引態様
一般媒介
引渡し
即時
リフォーム
    2025年7月
    キッチン 浴室 トイレ 壁 床 全室
    2025年7月
    外壁 屋根
取引条件の
有効期限
2026年04月28日

設備条件

設備条件
  • 陽当り良好 / 閑静な住宅地 / リフォーム済 / フローリング / 都市ガス / 公営水道 / 公共下水 / 照明器具付き / ガスコンロ / コンロ2口以上 / システムキッチン / コンロ3口 / 温水洗浄便座 / 複層ガラス
設備(その他)
    -

その他

物件番号
97015582
管理コード
-
建築確認番号
-
情報更新日
2026年04月14日
次回更新予定日
2026年04月28日
取扱会社
  • 有限会社北陽商事(売買)
  • 北海道釧路市南浜町5-4 
  • TEL:0154-68-5757
  • 北海道知事釧路 (15) 第104号
  • 公益社団法人北海道宅地建物取引業協会
    公益社団法人北海道不動産公正取引協議会
    全国賃貸管理ビジネス協会
    釧路みなとライオンズクラブ 会員
    一般社団法人 全国賃貸不動産管理業協会 会員
    一般社団法人 北海道中小企業家同友会

周辺施設

  • ぶた福の画像

    その他

    ぶた福

    290m(4分)

  • セブンイレブン 釧路大楽毛店の画像

    コンビニエンスストア

    セブンイレブン 釧路大楽毛店

    350m(5分)

  • 釧路優心病院の画像

    神経科・精神科

    釧路優心病院

    909m(12分)

  • 釧路警察署大楽毛交番の画像

    警察

    釧路警察署大楽毛交番

    937m(12分)

  • 釧路おたのしけ認定こども園の画像

    その他

    釧路おたのしけ認定こども園

    1023m(13分)

  • 大楽毛郵便局の画像

    郵便局

    大楽毛郵便局

    1036m(13分)

  • 大楽毛小学校の画像

    小学校

    大楽毛小学校

    1172m(15分)

  • 大楽毛中学校の画像

    中学校

    大楽毛中学校

    3041m(39分)

支払いシミュレーション

月々の支払額

※実際の金額と異なる場合があります。

購入希望物件価格
万円
頭金
万円
金利
%
返済額(ボーナス1回分)
万円
返済期間

※ボーナスは自動で年2回分で計算されます。

近隣の物件

  1. 昭和中央3丁目ミサワホーム様施工 中古住宅

    釧路市昭和中央3丁目

    4LDK (124.84㎡)

    3,480万円

  2. 武佐1丁目21 中古住宅

    釧路市武佐1丁目

    4LDK (121.05㎡)

    580万円

  3. 文苑2丁目 中古住宅

    釧路市文苑2丁目

    4LDK (100.19㎡)

    1,080万円

  4. 富士見2丁目 中古住宅

    釧路市富士見2丁目

    4LDK (135.47㎡)

    1,580万円

よく見られている物件

  1. 美原5丁目14 中古住宅

    釧路市美原5丁目

    4LDK (168.77㎡)

    2,100万円

  2.  新栄町RC戸建

    釧路市新栄町

    5LDK (136.08㎡)

    750万円

  3. 鳥取大通6丁目 高気密・高断熱・高気密住宅【手数料かかりません♪】

    釧路市鳥取大通6丁目

    4LDK+S(納戸) (112.61㎡)

    3,980万円

  4. 愛国西4丁目 完全分離二世帯住宅

    釧路市愛国西4丁目

    6LDK+S(納戸) (174.41㎡)

    3,300万円

大楽毛西1丁目3 中古住宅

大楽毛西1丁目3 中古住宅

1,333万円

-

5LDK(124.49㎡)

お気軽にお問い合わせください

LINEからお問い合わせ 無料お問い合わせ

有限会社北陽商事(売買)

0154-68-5757

10:00~18:00

(休:日曜(1月~3月は無休))