鶴居村【ログハウス】住居付き店舗兼ゲストハウス

4,000万円

北海道阿寒郡鶴居村字幌呂原野南1線43番6

根室本線「大楽毛」駅徒歩271分

価格
4,000万円
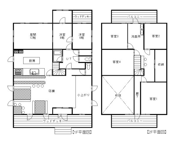
間取り
7SLDK
土地面積
9976.00㎡(3017.74坪)
構造
木造
所在階 / 階建て
- / 2階建
所在地
北海道阿寒郡鶴居村字幌呂原野南1線43番6
交通

根室本線大楽毛」駅 徒歩271分

専有面積
174.96㎡(52.92坪)
用途地域
無指定
築年月
1995年2月(築30年)

物件の特徴

  • 室内洗濯機置場

セールスポイント

総面積3,000坪超!北海道の大自然を感じられる鶴居村の中古ログハウスが登場しました!!1階はレストラン居抜き、2階はゲストハウス仕様の造りとなっております。木のぬくもりを存分に感じられ、2階の吹抜け部分から見下ろす階下の景色も素敵です(^^) 窓の外を見ると、広大な景色が広がっていて、冬期にはタンチョウが遊びに来るかもしれませんね!横の黄土色のログハウスも併せて、2棟セットでの販売となります!

ポイント

シーリングファン ログハウス  店舗付住宅 ゲストハウス 2棟セット売り

担当者のコメント

北海道の大自然を満喫しながら、店舗付き住宅で生活してみませんか。お隣のログハウスと2棟併せての販売です。居住中ですが、ご内覧については遠慮なくお問い合わせください。

基本情報

価格
4,000万円
修繕積立金
-
建物面積 /
専有面積
174.96㎡(52.92坪)
土地面積
9976.00㎡(3017.74坪)
バルコニー面積
-
その他面積
-
-
-
坪単価
75.59万円
間取り
7SLDK
所在階 / 階建て
- / 2階建
築年月
1995年2月(築30年)
建物構造
木造
都市計画
都市計画区域外
用途地域
無指定
駐車場 /
月額料金
有(10台) -
地目 / 地勢
原野 / 平坦
建ぺい率 /
容積率
- / -
向き
駐輪場
-
私道負担面積
-
総戸数
-
土地権利
所有権
土地
(敷金 / 保証金)
- / -
国土法届出要否
不要
現況
居住中
接道状況
一方(東 公道 11.5m 間口 61.0m)
取引態様
一般媒介
引渡
相談
管理員の
勤務形態
-
管理形態
-
管理会社 /
管理組合有無
- / -
その他
法令上の制限
-
取引条件の
有効期限
2026年01月26日

設備条件

設備条件
  • 陽当り良好 / 室内洗濯機置場 / バルコニー / プロパンガス / 電気有 / トイレ2ヶ所
設備(その他)
    -

その他

物件番号
93922790
管理コード
-
情報更新日
2026年01月12日
次回更新予定日
2026年01月26日
取扱会社
  • 有限会社北陽商事(売買)
  • 北海道釧路市南浜町5-4 
  • TEL:0154-68-5757
  • 北海道知事釧路 (15) 第104号
  • 公益社団法人北海道宅地建物取引業協会
    公益社団法人北海道不動産公正取引協議会
    全国賃貸管理ビジネス協会
    釧路みなとライオンズクラブ 会員
    一般社団法人 全国賃貸不動産管理業協会 会員
    一般社団法人 北海道中小企業家同友会
備考
・総敷地面積9,976㎡(地番:44-3(飛地)原野4,385㎡、43-5原野3,986㎡、43-6宅地1,605㎡、)
・測量を入れるのは43-5、43-6の4点のみとなります
・R8年3月に売主様がゲストハウス事業を終えます
・引渡しはR8年3月以降、売主様がお住まいになっておりますので契約締結後お引越に2~3ヶ月要する場合がございます
・まきごやには浄化槽が無い為、契約が決まりましたら売主負担で浄化槽の取り付けを行います。但し、補助金の関係で申請は買主よりして頂く必要がございます

周辺施設

  • 下幌呂小学校の画像

    小学校

    下幌呂小学校

    1808m(23分)

  • セイコーマート幌呂店の画像

    コンビニエンスストア

    セイコーマート幌呂店

    2508m(32分)

  • 鶴居中学校の画像

    中学校

    鶴居中学校

    9853m(124分)

支払いシミュレーション

月々の支払額
9.6
購入希望物件価格
万円
頭金
万円
金利
%
返済額(ボーナス1回分)
万円
返済期間

※ボーナスは自動で年2回分で計算されます。

近隣の物件

  1. 鶴居村字幌呂原野南6線 店舗兼住宅

    阿寒郡鶴居村字幌呂原野南6線

    - (130.57㎡)

    2,580万円

  2. 鶴居村【店舗付き住居+工房】2棟セット売

    阿寒郡鶴居村字雪裡原野

    - (134.14㎡)

    1,700万円

鶴居村【ログハウス】住居付き店舗兼ゲストハウス

鶴居村【ログハウス】住居付き店舗兼ゲストハウス

4,000万円

-

7SLDK(174.96㎡)

お気軽にお問い合わせください

LINEからお問い合わせ 無料お問い合わせ

有限会社北陽商事(売買)

0154-68-5757

10:00~18:00

(休:日曜(1月~3月は無休))